Top.Mail.Ru

улица Коненкова, д. 23

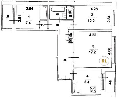
База каталог, Кол-во подъездов: 6, П-30, Москва, Бибирево, Площадь парковки: 0, Пассажирский лифт: 12, От метро: 1530, Северо-Восточный, нет, Наименьшее кол-во этажей: 12, Наибольшее кол-во этажей: 12, Бибирево, Кол-во помещений: 305, Кол-во нежилых помещений: 19, Год ввода в эксплуатацию: 1975, 3-комн, Кол-во жилых помещений: 286, А, дом 23, нет, да, да, да, да, нет, Грузовых лифтов: 0, Год постройки: 1975, улица Коненкова, 37.610745, 55.894727
Свяжитесь со мной на счет цены
10 дн.
T55S894727L37S610745T

На карте


Условия сделки

Источник


Старт продаж

Возможно заинтересует