Top.Mail.Ru

улица Корнейчука, д. 39

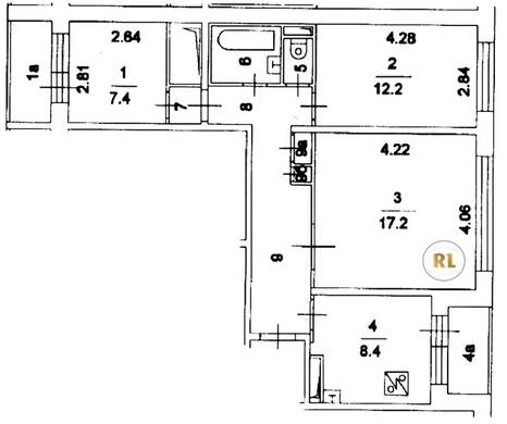
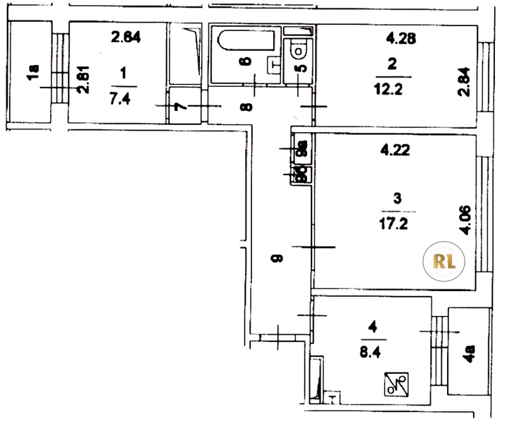
База каталог, Кол-во подъездов: 3, П-30, Москва, Бибирево, Площадь парковки: 0, Пассажирский лифт: 3, От метро: 2230, Северо-Восточный, нет, Наименьшее кол-во этажей: 12, Наибольшее кол-во этажей: 12, Бибирево, Кол-во помещений: 148, Кол-во нежилых помещений: 6, Год ввода в эксплуатацию: 1982, 3-комн, Кол-во жилых помещений: 142, А, дом 39, нет, да, да, нет, нет, нет, Грузовых лифтов: 3, Год постройки: 1982, улица Корнейчука, 37.632978, 55.895222
Свяжитесь со мной на счет цены
10 дн.
T55S895222L37S632978T

На карте


Условия сделки

Источник


Старт продаж

Возможно заинтересует