Top.Mail.Ru

Мурановская ул., д. 12

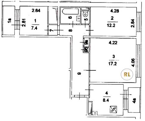
База каталог, Кол-во подъездов: 6, П-30, Москва, Бибирево, Площадь парковки: 0, Пассажирский лифт: 12, От метро: 1250, Северо-Восточный, нет, Наименьшее кол-во этажей: 12, Наибольшее кол-во этажей: 12, Алтуфьево, Кол-во помещений: 283, Кол-во нежилых помещений: 11, Год ввода в эксплуатацию: 1975, 3-комн, Кол-во жилых помещений: 272, D, дом 12, нет, да, да, да, да, нет, Отсутствует, Грузовых лифтов: 0, Год постройки: 1975, Мурановская улица, 37.603972, 55.895838
Свяжитесь со мной на счет цены
10 дн.
T55S895838L37S603972T

На карте


Условия сделки

Источник


Старт продаж

Возможно заинтересует