Top.Mail.Ru

улица Корнейчука, д. 33А

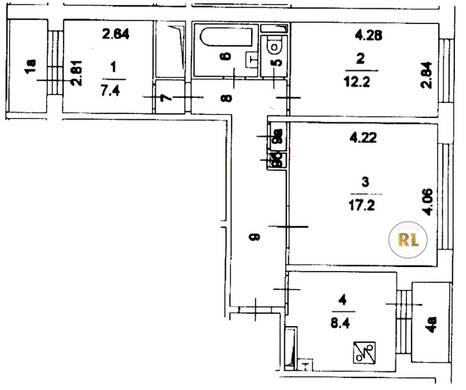
База каталог, Кол-во подъездов: 3, П-30, Москва, Бибирево, Площадь парковки: 0, Пассажирский лифт: 6, От метро: 2380, Северо-Восточный, нет, Наименьшее кол-во этажей: 12, Наибольшее кол-во этажей: 12, Медведково, Кол-во помещений: 148, Кол-во нежилых помещений: 6, Год ввода в эксплуатацию: 1982, 3-комн, Кол-во жилых помещений: 142, А, дом 33А, нет, да, да, нет, нет, нет, Грузовых лифтов: 0, Год постройки: 1982, улица Корнейчука, 37.636635, 55.895939
Свяжитесь со мной на счет цены
10 дн.
T55S895939L37S636635T

На карте


Условия сделки

Источник


Старт продаж

Возможно заинтересует