Top.Mail.Ru

улица Корнейчука, д. 37

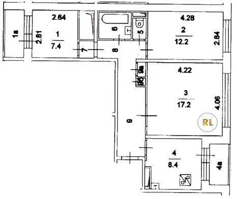
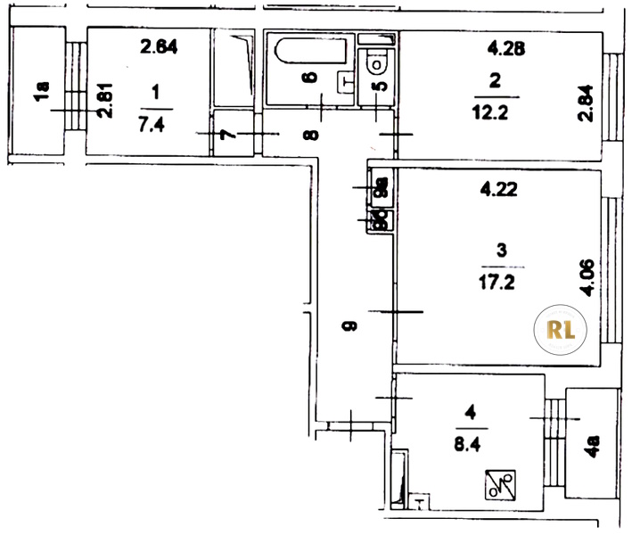
База каталог, Кол-во подъездов: 4, П-30, Москва, Бибирево, Площадь парковки: 0, Пассажирский лифт: 8, От метро: 2350, Северо-Восточный, нет, Наименьшее кол-во этажей: 12, Наибольшее кол-во этажей: 12, Бибирево, Кол-во помещений: 199, Кол-во нежилых помещений: 9, Год ввода в эксплуатацию: 1981, 3-комн, Кол-во жилых помещений: 190, А, дом 37, нет, да, да, нет, нет, нет, Грузовых лифтов: 0, Год постройки: 1981, улица Корнейчука, 37.633976, 55.896236
Свяжитесь со мной на счет цены
10 дн.
T55S896236L37S633976T

На карте


Условия сделки

Источник


Старт продаж

Возможно заинтересует