Top.Mail.Ru

улица Корнейчука, д. 33

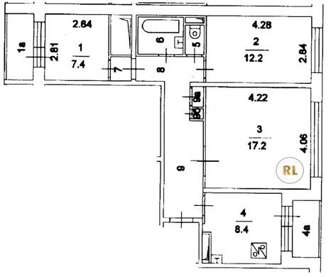
База каталог, Кол-во подъездов: 6, П-30, Москва, Бибирево, Площадь парковки: 0, Пассажирский лифт: 12, От метро: 2390, Северо-Восточный, нет, Наименьшее кол-во этажей: 12, Наибольшее кол-во этажей: 12, Медведково, Кол-во помещений: 284, Кол-во нежилых помещений: 6, Год ввода в эксплуатацию: 1981, 3-комн, Кол-во жилых помещений: 278, А, дом 33, нет, да, да, нет, нет, нет, Грузовых лифтов: 0, Год постройки: 1981, улица Корнейчука, 37.635557, 55.896458
Свяжитесь со мной на счет цены
10 дн.
T55S896458L37S635557T

На карте


Условия сделки

Источник


Старт продаж

Возможно заинтересует