Top.Mail.Ru

Мурановская ул., д. 12А

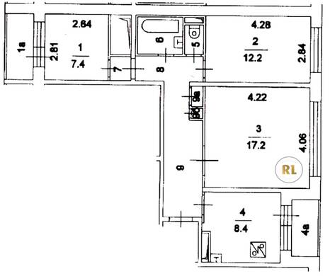
База каталог, Кол-во подъездов: 6, П-30, Москва, Бибирево, Площадь парковки: 0, Пассажирский лифт: 12, От метро: 1290, Северо-Восточный, нет, Наименьшее кол-во этажей: 12, Наибольшее кол-во этажей: 12, Алтуфьево, Кол-во помещений: 294, Кол-во нежилых помещений: 8, Год ввода в эксплуатацию: 1974, 3-комн, Кол-во жилых помещений: 286, С, дом 12А, нет, да, да, да, да, нет, Грузовых лифтов: 0, Год постройки: 1974, Мурановская улица, 37.605472, 55.896665
Свяжитесь со мной на счет цены
10 дн.
T55S896665L37S605472T

На карте


Условия сделки

Источник


Старт продаж

Возможно заинтересует