Top.Mail.Ru

Мурановская ул., д. 21А

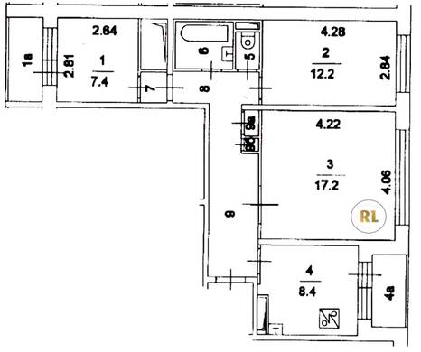
База каталог, Кол-во подъездов: 3, П-30, Москва, Бибирево, Площадь парковки: 0, Пассажирский лифт: 6, От метро: 1010, Северо-Восточный, нет, Наименьшее кол-во этажей: 12, Наибольшее кол-во этажей: 12, Алтуфьево, Кол-во помещений: 149, Кол-во нежилых помещений: 6, Год ввода в эксплуатацию: 1983, 3-комн, Кол-во жилых помещений: 143, А, дом 21А, нет, да, да, да, да, да, Грузовых лифтов: 0, Год постройки: 1983, Мурановская улица, 37.600971, 55.897039
Свяжитесь со мной на счет цены
10 дн.
T55S897039L37S600971T

На карте


Условия сделки

Источник


Старт продаж

Возможно заинтересует