Top.Mail.Ru

Череповецкая ул., д. 24

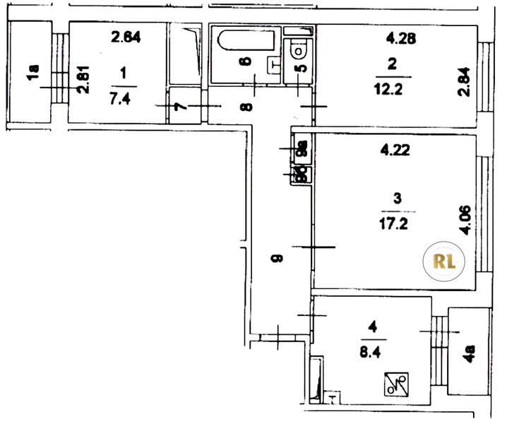
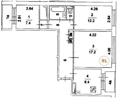
База каталог, Кол-во подъездов: 4, П-30, Москва, Лианозово, Площадь парковки: 0, Пассажирский лифт: 8, От метро: 150, Северо-Восточный, нет, Наименьшее кол-во этажей: 12, Наибольшее кол-во этажей: 12, Алтуфьево, Кол-во помещений: 179, Кол-во нежилых помещений: 3, Год ввода в эксплуатацию: 1979, 3-комн, Кол-во жилых помещений: 176, Не присвоен, дом 24, да, да, да, да, да, да, Имеется, Грузовых лифтов: 0, Год постройки: 1979, Череповецкая улица, 37.584856, 55.897236
Свяжитесь со мной на счет цены
10 дн.
T55S897236L37S584856T

На карте


Условия сделки

Источник


Старт продаж

Возможно заинтересует