Top.Mail.Ru

улица Лескова, д. 10В

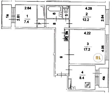
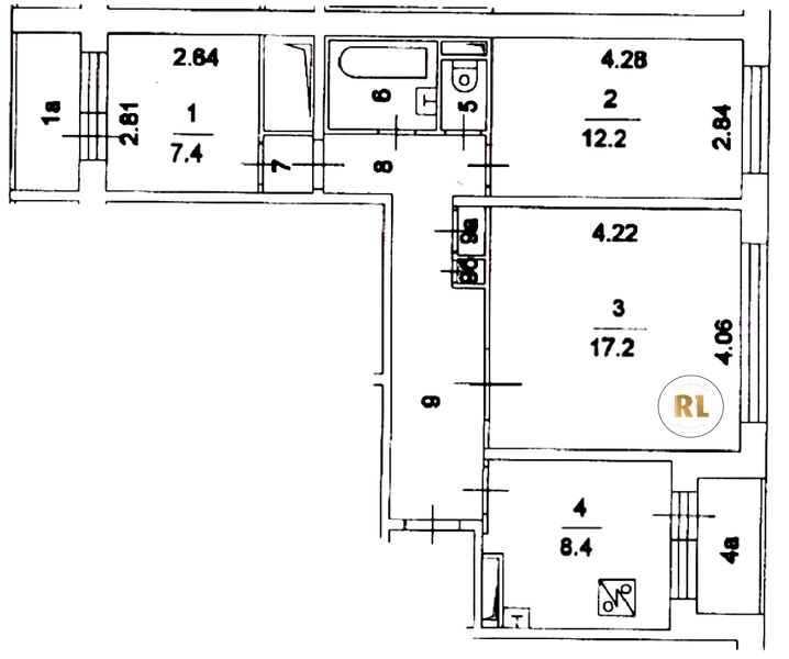
База каталог, Кол-во подъездов: 2, П-30, Москва, Бибирево, Площадь парковки: 0, Пассажирский лифт: 4, От метро: 960, Северо-Восточный, нет, Наименьшее кол-во этажей: 12, Наибольшее кол-во этажей: 12, Алтуфьево, Кол-во помещений: 99, Кол-во нежилых помещений: 6, Год ввода в эксплуатацию: 1984, 3-комн, Кол-во жилых помещений: 93, В+, дом 10В, нет, да, да, да, да, да, Грузовых лифтов: 0, Год постройки: 1984, улица Лескова, 37.602076, 55.897619
Свяжитесь со мной на счет цены
10 дн.
T55S897619L37S602076T

На карте


Условия сделки

Источник


Старт продаж

Возможно заинтересует