Top.Mail.Ru

улица Лескова, д. 6

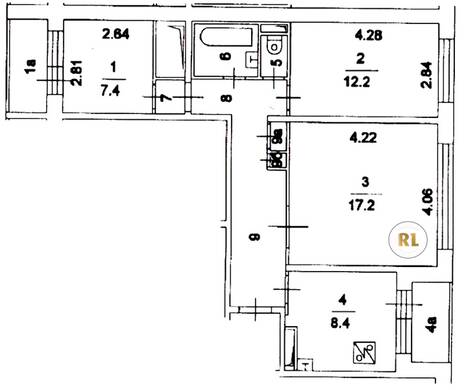
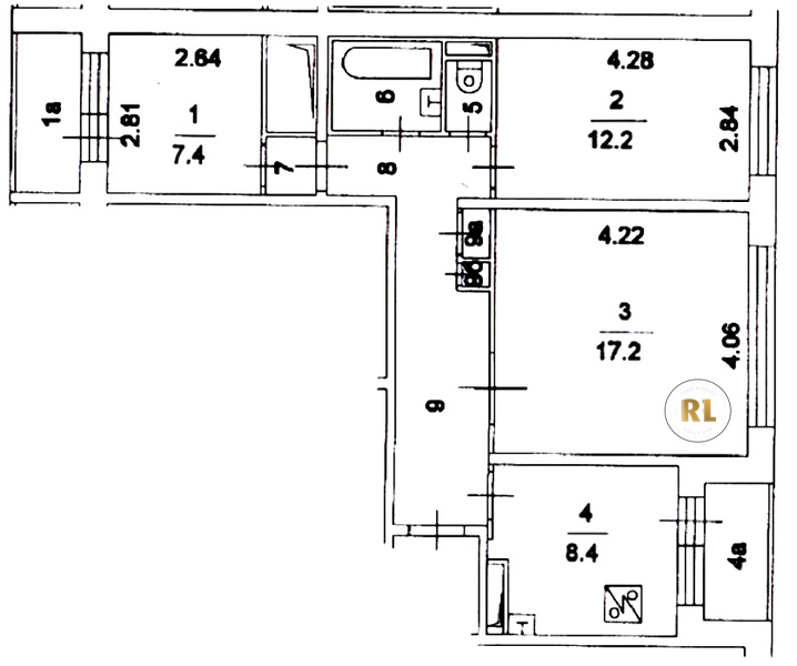
База каталог, Кол-во подъездов: 6, П-30, Москва, Бибирево, Площадь парковки: 0, Пассажирский лифт: 12, От метро: 440, Северо-Восточный, нет, Наименьшее кол-во этажей: 12, Наибольшее кол-во этажей: 12, Алтуфьево, Кол-во помещений: 300, Кол-во нежилых помещений: 25, Год ввода в эксплуатацию: 1975, 3-комн, Кол-во жилых помещений: 275, А, дом 6, да, да, да, да, да, да, Грузовых лифтов: 0, Год постройки: 1975, улица Лескова, 37.593129, 55.897725
Свяжитесь со мной на счет цены
10 дн.
T55S897725L37S593129T

На карте


Условия сделки

Источник


Старт продаж

Возможно заинтересует