Top.Mail.Ru

Череповецкая ул., д. 15

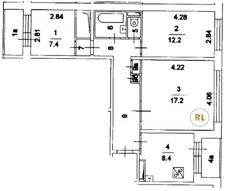
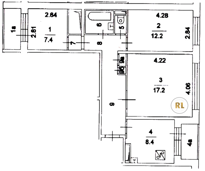
База каталог, Кол-во подъездов: 4, Имеется, П-30, Москва, Лианозово, Площадь парковки: 0, Пассажирский лифт: 8, От метро: 132, Северо-Восточный, нет, Наименьшее кол-во этажей: 12, Наибольшее кол-во этажей: 12, Алтуфьево, Кол-во помещений: 179, Кол-во нежилых помещений: 3, Год ввода в эксплуатацию: 1977, 3-комн, Кол-во жилых помещений: 176, Не присвоен, дом 15, да, да, да, да, да, да, Имеется, Грузовых лифтов: 0, Год постройки: 1977, Череповецкая улица, 37.584901, 55.899356
Свяжитесь со мной на счет цены
10 дн.
T55S899356L37S584901T

На карте


Условия сделки

Источник


Старт продаж

Возможно заинтересует