Top.Mail.Ru

улица Корнейчука, д. 16

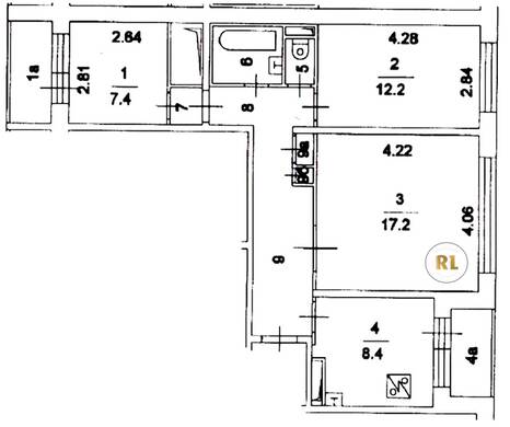
База каталог, Кол-во подъездов: 9, П-30, Москва, Бибирево, Площадь парковки: 0, Пассажирский лифт: 18, От метро: 1680, Северо-Восточный, нет, Наименьшее кол-во этажей: 12, Наибольшее кол-во этажей: 12, Алтуфьево, Кол-во помещений: 437, Кол-во нежилых помещений: 16, Год ввода в эксплуатацию: 1977, 3-комн, Кол-во жилых помещений: 421, Не присвоен, дом 16, нет, да, да, да, нет, нет, Грузовых лифтов: 0, Год постройки: 1977, улица Корнейчука, 37.611033, 55.901556
Свяжитесь со мной на счет цены
10 дн.
T55S901556L37S611033T

На карте


Условия сделки

Источник


Старт продаж

Возможно заинтересует