Top.Mail.Ru

Абрамцевская ул., д. 18

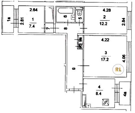
База каталог, Кол-во подъездов: 5, Имеется, П-30, Москва, Лианозово, Площадь парковки: 0, Пассажирский лифт: 10, От метро: 1140, Северо-Восточный, нет, Наименьшее кол-во этажей: 12, Наибольшее кол-во этажей: 12, Алтуфьево, Кол-во помещений: 236, Кол-во нежилых помещений: 0, Год ввода в эксплуатацию: 1976, 3-комн, Кол-во жилых помещений: 236, Не присвоен, дом 18, нет, да, да, да, да, нет, Имеется, Грузовых лифтов: 0, Год постройки: 1976, Абрамцевская улица, 37.574543, 55.902858
Свяжитесь со мной на счет цены
10 дн.
T55S902858L37S574543T

На карте


Условия сделки

Источник


Старт продаж

Возможно заинтересует