Top.Mail.Ru

Новгородская ул., д. 31

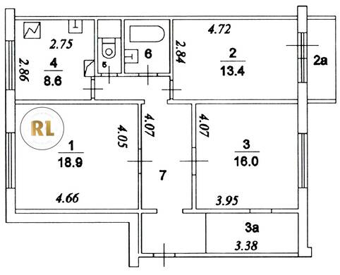
База каталог, Кол-во подъездов: 6, П-46, Москва, Лианозово, Площадь парковки: 0, Пассажирский лифт: 12, От метро: 980, Северо-Восточный, нет, Наименьшее кол-во этажей: 12, Наибольшее кол-во этажей: 12, Алтуфьево, Кол-во помещений: 287, Кол-во нежилых помещений: 1, Год ввода в эксплуатацию: 1977, 3-комн, Кол-во жилых помещений: 286, Не присвоен, дом 31, нет, да, да, да, да, да, Имеется, Грузовых лифтов: 0, Год постройки: 1977, Новгородская улица, 37.578855, 55.904357
Свяжитесь со мной на счет цены
10 дн.
T55S904357L37S578855T

На карте


Условия сделки

Источник


Старт продаж

Возможно заинтересует