Top.Mail.Ru

Челобитьевское шоссе, д. 12, к. 4

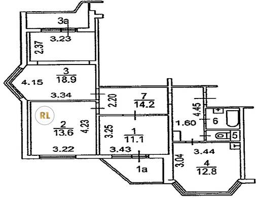
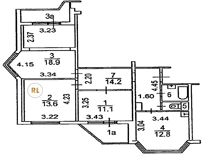
База каталог, Кол-во подъездов: 3, Имеется, П-44T, Москва, Северный, Пассажирский лифт: 3, От метро: 3500, Северо-Восточный, да, Наименьшее кол-во этажей: 17, Наибольшее кол-во этажей: 17, Алтуфьево, Кол-во помещений: 195, Кол-во нежилых помещений: 3, Год ввода в эксплуатацию: 2007, 3-комн, Кол-во жилых помещений: 192, дом 12, корпус 4, нет, нет, нет, нет, нет, нет, Имеется, Грузовых лифтов: 3, Год постройки: 2007, Челобитьевское шоссе, 37.549902, 55.912173
Свяжитесь со мной на счет цены
10 дн.
T55S912173L37S549902T

На карте


Условия сделки

Источник


Старт продаж

Возможно заинтересует