Top.Mail.Ru

Челобитьевское шоссе, д. 10, к. 3

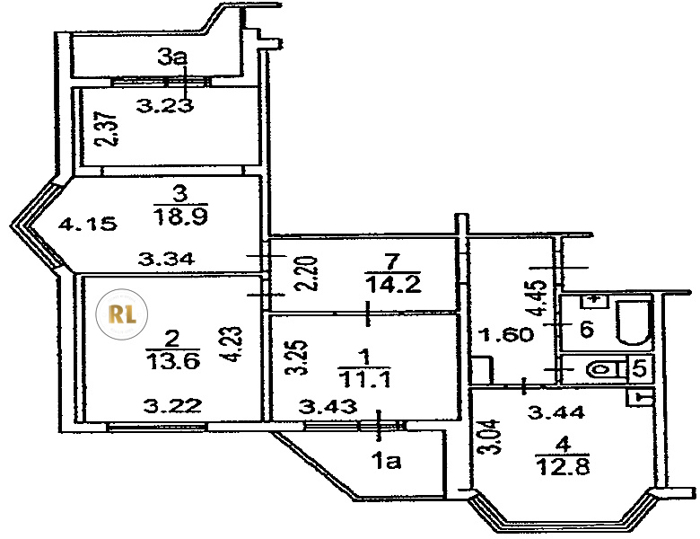
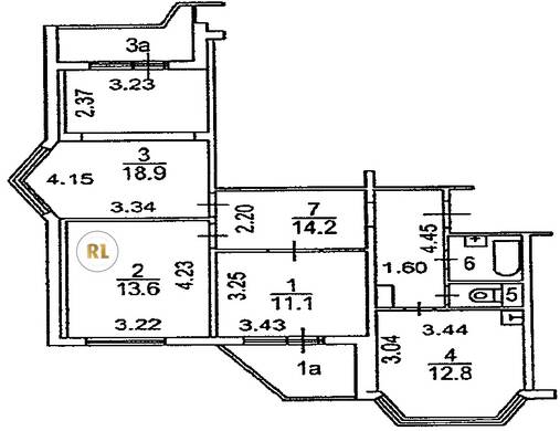
База каталог, Кол-во подъездов: 5, Имеется, П-44T, Москва, Северный, Пассажирский лифт: 5, От метро: 3300, Северо-Восточный, да, Наименьшее кол-во этажей: 14, Наибольшее кол-во этажей: 14, Алтуфьево, Кол-во помещений: 265, Кол-во нежилых помещений: 5, Год ввода в эксплуатацию: 2006, 3-комн, Кол-во жилых помещений: 260, дом 10, корпус 3, нет, нет, нет, нет, нет, нет, Имеется, Грузовых лифтов: 5, Год постройки: 2006, Челобитьевское шоссе, 37.555849, 55.913253
Свяжитесь со мной на счет цены
10 дн.
T55S913253L37S555849T

На карте


Условия сделки

Источник


Старт продаж

Возможно заинтересует