Top.Mail.Ru

Челобитьевское шоссе, д. 12, к. 2

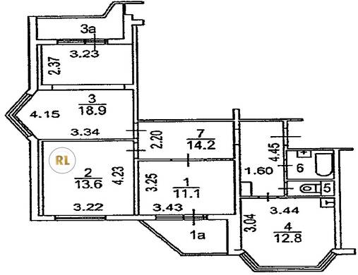
База каталог, Кол-во подъездов: 4, П-44T, Москва, Северный, Пассажирский лифт: 4, От метро: 3600, Северо-Восточный, да, Наименьшее кол-во этажей: 17, Наибольшее кол-во этажей: 17, Алтуфьево, Кол-во помещений: 264, Кол-во нежилых помещений: 4, Год ввода в эксплуатацию: 2007, 3-комн, Кол-во жилых помещений: 260, дом 12, корпус 2, нет, нет, нет, нет, нет, нет, Грузовых лифтов: 4, Год постройки: 2007, Челобитьевское шоссе, 37.548860, 55.913616
Свяжитесь со мной на счет цены
10 дн.
T55S913616L37S548860T

На карте


Условия сделки

Источник


Старт продаж

Возможно заинтересует