Top.Mail.Ru

9-я Северная линия, д. 17

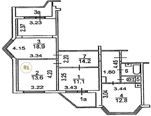
База каталог, Наибольшее кол-во этажей: 17, Имеется, П-44T, Москва, Северный, Площадь парковки: 0, Пассажирский лифт: 2, Северо-Восточный, нет, Наименьшее кол-во этажей: 17, Кол-во помещений: 132, Год ввода в эксплуатацию: 2004, Кол-во подъездов: 2, Кол-во нежилых помещений: 2, 3-комн, Кол-во жилых помещений: 130, Не присвоен, дом 17, Имеется, Грузовых лифтов: 2, Год постройки: 2004, 9-я Северная линия, 37.549282, 55.932828
Свяжитесь со мной на счет цены
10 дн.
T55S932828L37S549282T

На карте


Условия сделки

Источник


Старт продаж

Возможно заинтересует