Top.Mail.Ru

9-я Северная линия, д. 15

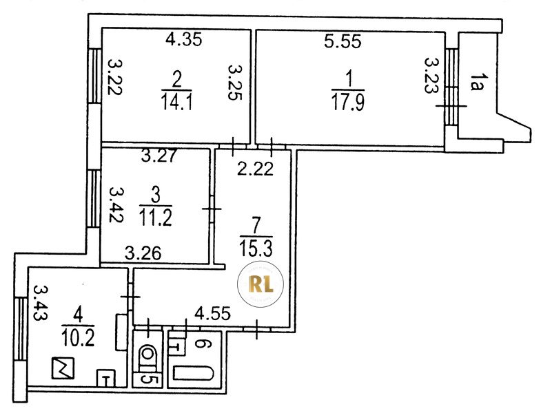
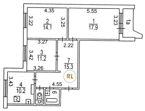
База каталог, Наибольшее кол-во этажей: 17, П-44, Москва, Северный, Площадь парковки: 0, Пассажирский лифт: 3, Северо-Восточный, нет, Наименьшее кол-во этажей: 17, Кол-во помещений: 206, Год ввода в эксплуатацию: 1987, Кол-во подъездов: 3, Кол-во нежилых помещений: 3, 3-комн, Кол-во жилых помещений: 203, Не присвоен, дом 15, Грузовых лифтов: 3, Год постройки: 1987, 9-я Северная линия, 37.549974, 55.933388
Свяжитесь со мной на счет цены
10 дн.
T55S933388L37S549974T

На карте


Условия сделки

Источник


Старт продаж

Возможно заинтересует