Top.Mail.Ru

9-я Северная линия, д. 13

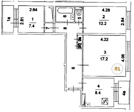
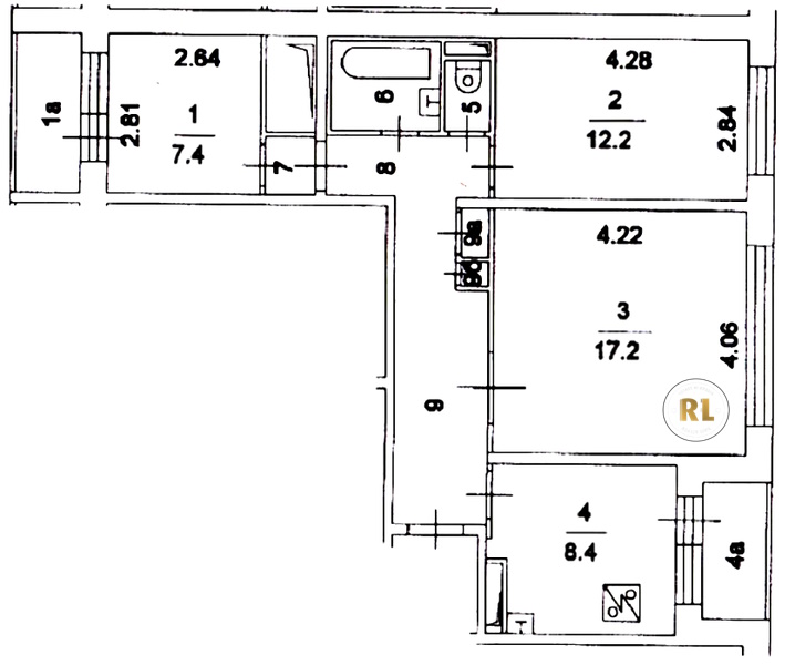
База каталог, Наибольшее кол-во этажей: 12, Имеется, П-30, Москва, Северный, Площадь парковки: 0, Пассажирский лифт: 6, Северо-Восточный, нет, Наименьшее кол-во этажей: 12, Кол-во помещений: 290, Год ввода в эксплуатацию: 1982, Кол-во подъездов: 6, Кол-во нежилых помещений: 6, 3-комн, Кол-во жилых помещений: 284, Не присвоен, дом 13, Имеется, Грузовых лифтов: 6, Год постройки: 1982, 9-я Северная линия, 37.548977, 55.934321
Свяжитесь со мной на счет цены
10 дн.
T55S934321L37S548977T

На карте


Условия сделки

Источник


Старт продаж

Возможно заинтересует