Top.Mail.Ru

9-я Северная линия, д. 1

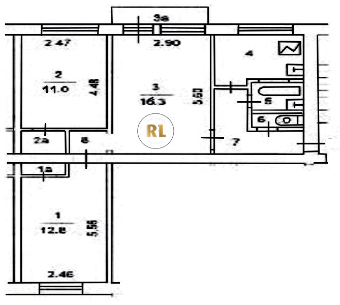
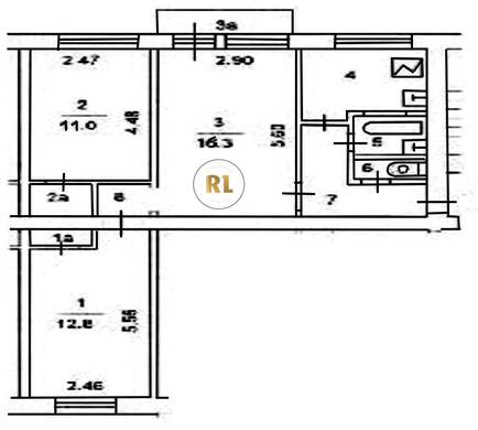
База каталог, Наибольшее кол-во этажей: 5, I-511, Москва, Северный, Площадь парковки: 0, Пассажирский лифт: 0, Северо-Восточный, нет, Наименьшее кол-во этажей: 5, Кол-во помещений: 159, Год ввода в эксплуатацию: 1964, Кол-во подъездов: 8, Кол-во нежилых помещений: 0, 3-комн, Кол-во жилых помещений: 159, Не присвоен, дом 1, Имеется, Грузовых лифтов: 0, Год постройки: 1964, 9-я Северная линия, 37.552597, 55.935249
Свяжитесь со мной на счет цены
10 дн.
T55S935249L37S552597T

На карте


Условия сделки

Источник


Старт продаж

Возможно заинтересует