Top.Mail.Ru

улица Академика Понтрягина, д. 21, к. 1

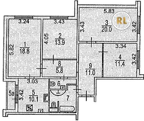
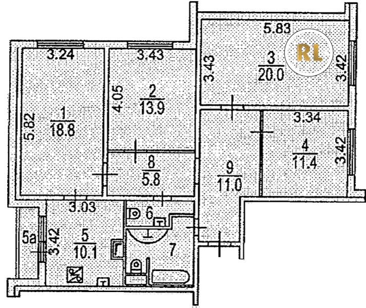
База каталог, Кол-во подъездов: 2, Имеется, КОПЭ, Москва, Южное Бутово, Площадь парковки: 576, Пассажирский лифт: 4, От метро: 1060, Юго-Западный, да, Наименьшее кол-во этажей: 22, Наибольшее кол-во этажей: 22, Бунинская аллея, Кол-во помещений: 176, Кол-во нежилых помещений: 3, Год ввода в эксплуатацию: 2007, 4-комн, Кол-во жилых помещений: 173, Не присвоен, дом 21, корпус 1, нет, да, да, да, да, да, Имеется, Грузовых лифтов: 2, Год постройки: 2007, улица Академика Понтрягина, 37.503720, 55.532844
Свяжитесь со мной на счет цены
10 дн.
V55S532844L37S503720V

На карте


Условия сделки

Источник


Старт продаж

Возможно заинтересует