Top.Mail.Ru

улица Академика Понтрягина, д. 11, к. 1

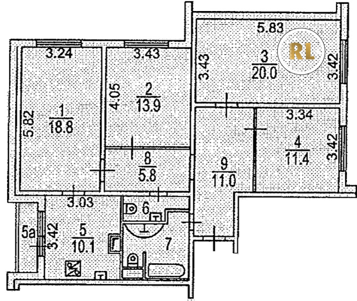
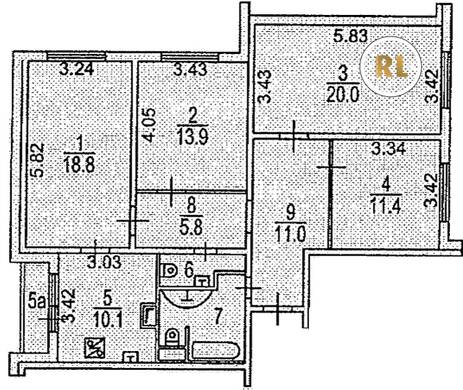
База каталог, Кол-во подъездов: 2, Имеется, КОПЭ, Москва, Южное Бутово, Площадь парковки: 224, Пассажирский лифт: 4, От метро: 1060, Юго-Западный, да, Наименьшее кол-во этажей: 22, Наибольшее кол-во этажей: 22, Бунинская аллея, Кол-во помещений: 171, Кол-во нежилых помещений: 1, Год ввода в эксплуатацию: 2007, 4-комн, Кол-во жилых помещений: 170, Не присвоен, дом 11, корпус 1, нет, да, да, да, да, да, Имеется, Грузовых лифтов: 2, Год постройки: 2007, улица Академика Понтрягина, 37.502274, 55.535554
Свяжитесь со мной на счет цены
10 дн.
V55S535554L37S502274V

На карте


Условия сделки

Источник


Старт продаж

Возможно заинтересует